Étude de projet
- Le relevé de cotes
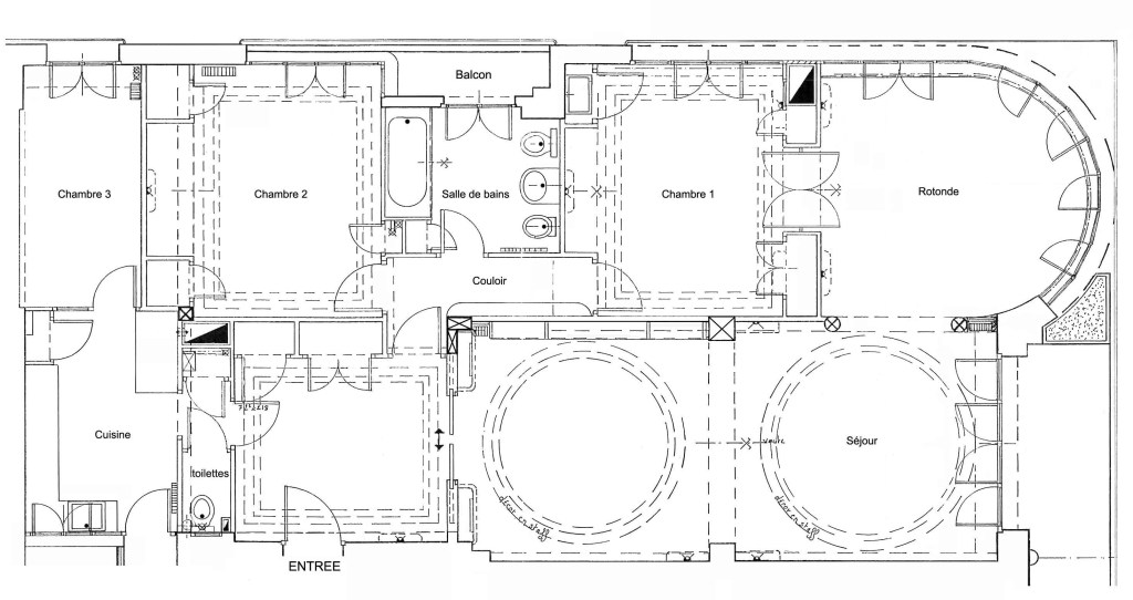
- La réalisation des plans 2D du projet avec des perspectives en 3D
- La rédaction descriptive et quantitative par corps d’état (plomberie, électricité, maçonnerie, menuiserie, peinture…)
- La pré-sélection de matériaux et d’équipements (revêtements de sol, murs, sanitaires, mobilier…)
La conception et la réalisation de projet clé en main
De la conception à la réalisation, cette prestation comprend :
- La réalisation de plans en 2D avec des vues en 3D afin de mieux appréhender le projet
- L’élaboration des schémas techniques (plomberie, électricité, maçonnerie, menuiserie…)
- L’accompagnement dans le choix de tous les matériaux (revêtements de sol, revêtements muraux, sanitaires, meuble de cuisine et de salle de bain, luminaires…)
- La consultation d’entreprises afin de faire établir des devis
- La validation de l’enveloppe budgétaire
- La mise en place d’un planning de réalisation
- Les documents nécessaires si besoin en mairie (permis, déclaration préalable de travaux)
- La gestion et l’organisation de votre chantier
- Élaboration des comptes rendus de chantier
- La réception de votre chantier via un procès-verbal officiel vous assurant toutes les garanties professionnelles pour toutes les entreprises (corps d’état)
- Honoraires sur demande
Pour plus de renseignements, n’hésitez pas à contacter votre architecte d’intérieur à Nice !
Exemple d’aménagement intérieur :





Rendu final d’un projet audacieux, conservant l’esprit de l’appartement, tout en y ajoutant une touche de modernité et une redistribution totale des volumes.






